
Предлагаме за продажба две еднофамилни къщи тип „близнаци“, част от новостартирал жилищен проект в с. Нови хан, само на няколко минути от София с удобен достъп по автомагистрала „Тракия“. Всеки от имотите е проектиран с внимание към детайла и предлага следното функционално разпределение:
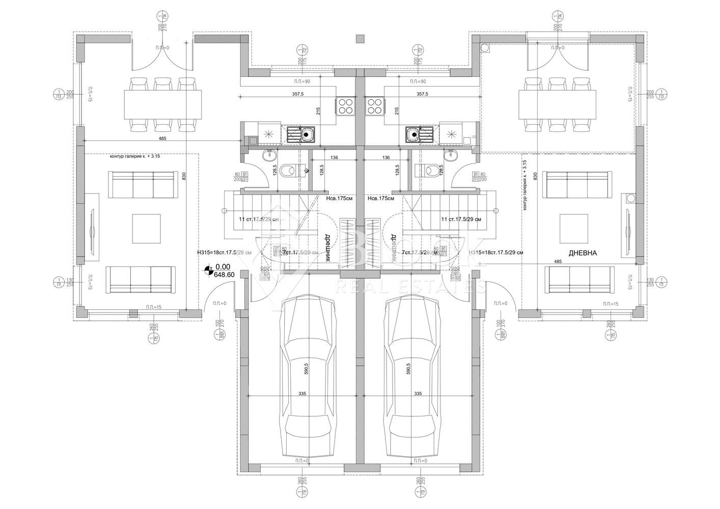
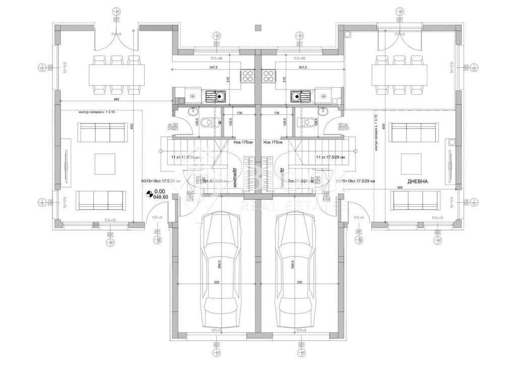
ЕТАЖ 1 - Входно антре с дрешник, огромен хол с камина и кухненски кът, трапезарна част и топла връзка към гараж.
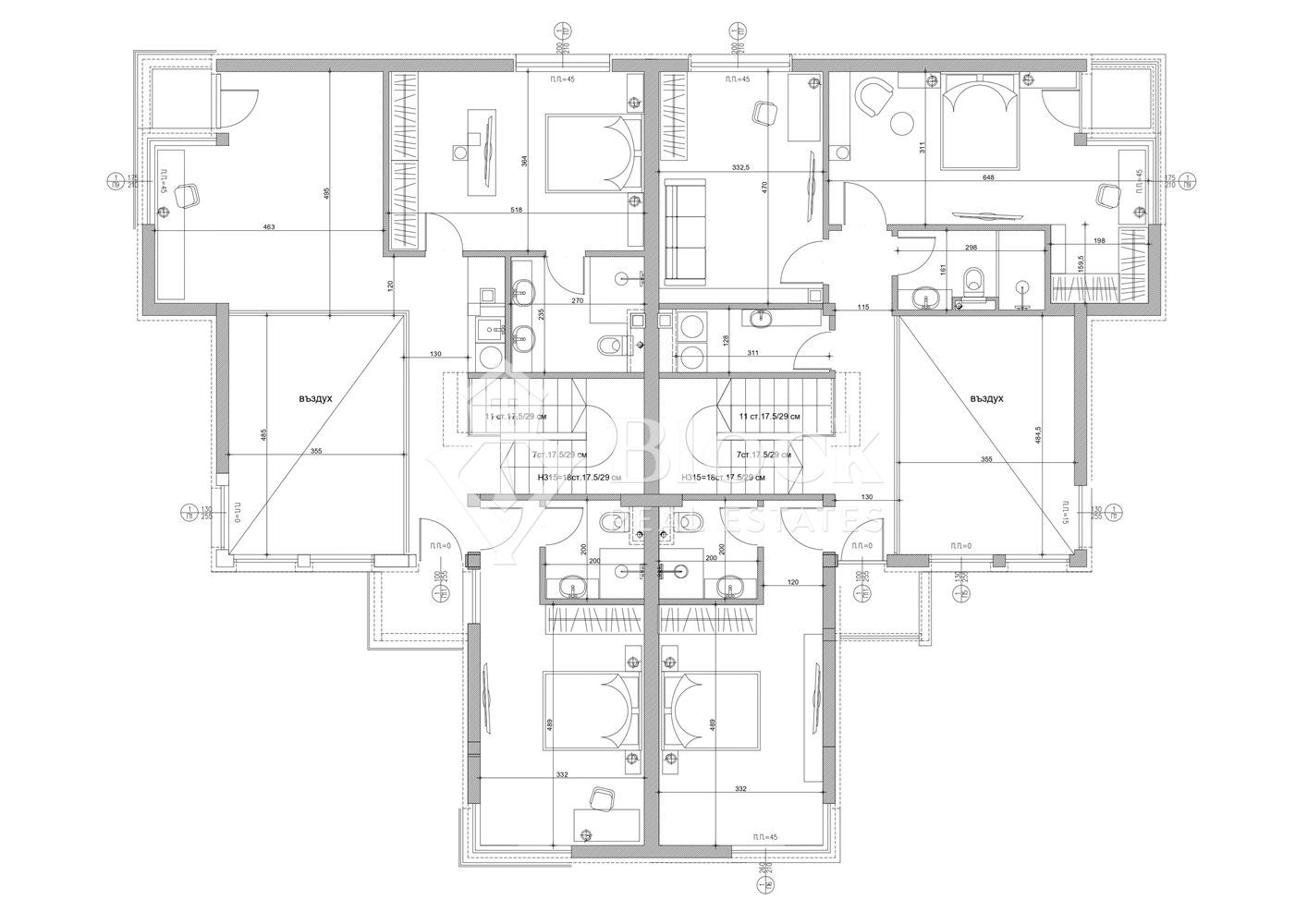
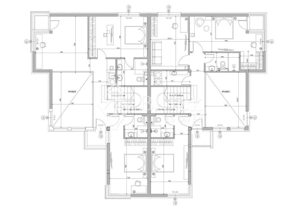
ЕТАЖ 2 - Две спални, всяка разполагаща със собствена баня с тоалетна и помещение подходящо за кабинет или трета спалня.
Всяка от къщите разполага с двор подходящ за озеленяване и зона за отдих. Районът е тих и зелен, с постоянно живеещи съседи и добре развита инфраструктура.
Имотите се предлагат на степен на завършеност шпакловка и замазка, което позволява на бъдещите собственици да ги довършат според личния си стил и предпочитания, за което може да получат допълнително съдействие от изпълнителя на проекта. Строителството вече започна, а закупуването на имот в този етап дава възможност за по-голяма гъвкавост при бъдещото довършване.
Районът на с. Нови Хан се превърна в една от най-предпочитаните дестинации за живеене за хората, които искат да избягат от шума и напрегнатото ежедневие на столицата. В същото време разстоянието до центъра на София е 24 км. по магистрала Тракия, която е само на 500м.
Обадете се сега и се възползвайте от възможността да станете собственик на бутиков имот без аналог на пазара! Цитирайте код: 277













